6 locali in vendita

Torino, Str. del Fortino - Strada Del Fortino
€ 285.000
6 locali 6 locali
150 Mq 150 Mq
2 bagni 2 bagni

6 locali in vendita

Torino, Str. del Fortino - Strada Del Fortino

Descrizione annuncio

Strada del Fortino

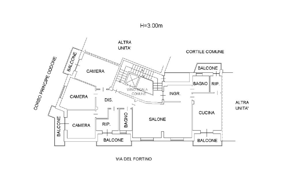
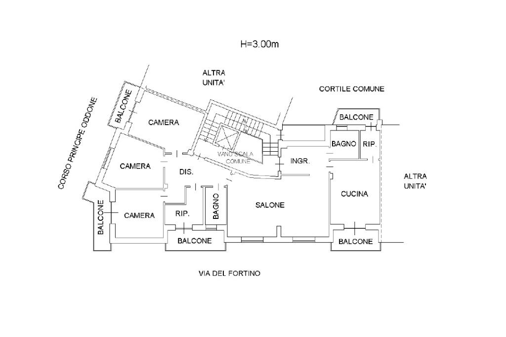
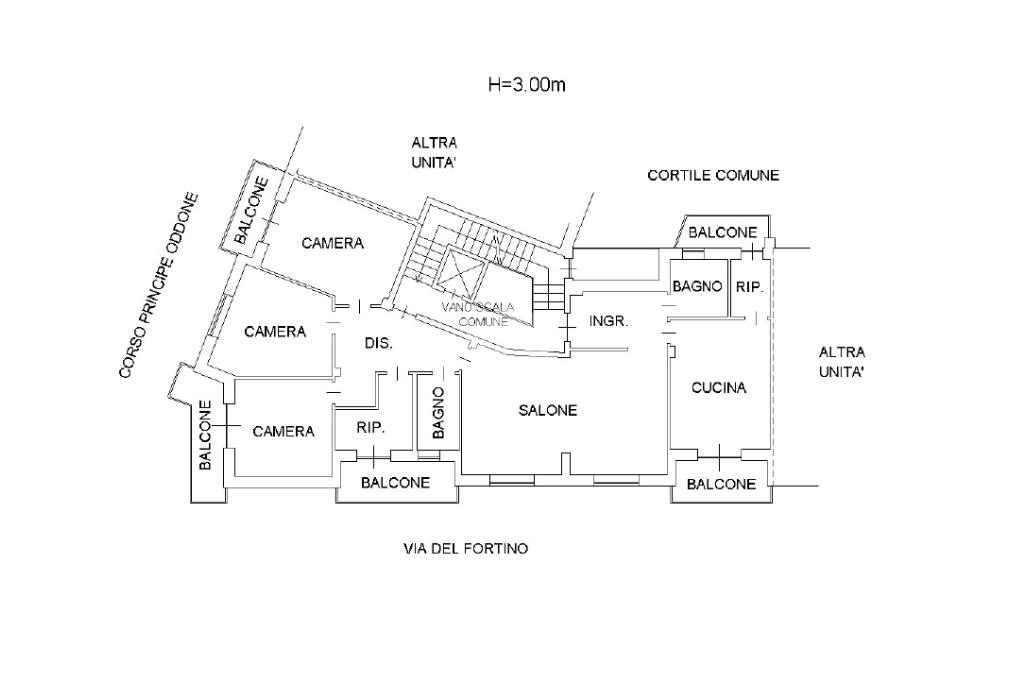
Nel cuore di Torino, proponiamo un ampio appartamento di 150 mq, situato in un edificio decoroso degli anni '70.

L'immobile si trova al terzo piano, unico sul piano, facilmente accessibile grazie alla presenza di un ascensore.

Gli spazi interni sono ben distribuiti, offrendo sei locali che possono essere personalizzati secondo le proprie esigenze.

La disposizione degli ambienti consente di avere una zona giorno ampia composta da salone living luminoso e accogliente, un'ampia cucina abitabile, mentre le tre camere da letto ben disimpegnate garantiscono comfort e privacy. I due bagni sono entrambi dotati di finestra.

Ampi spazi esterni grazie alla presenza di sei balconi, due cantine.

Riscaldamento centralizzato con termovalvole.

La posizione strategica permette di raggiungere facilmente i principali servizi e le aree verdi della città.

Questa soluzione è ideale per chi cerca un'abitazione spaziosa in una zona ben servita, con la possibilità di adattare gli spazi alle proprie necessità.

L'appartamento rappresenta un'opportunità interessante per chi desidera vivere in una delle zone più dinamiche di Torino.

Per fissare un appuntamento contattateci al numero 011 19483515 o tramite l'indirizzo mail .
Oppure veniteci a trovare in Corso Principe Eugenio 3.

Mostra tutto

Nelle vicinanze

Trasporto pubblico Trasporto pubblico
Principi D'Acaja
Principi D'Acaja
1,4 Km
XVIII Dicembre
XVIII Dicembre
1,5 Km
Torino Dora GTT
Torino Dora GTT
510 m
stazione di Torino Rebaudengo Fossata
stazione di Torino Rebaudengo Fossata
1,7 Km
Rondò Forca Ovest
Rondò Forca Ovest
750 m
Ricariche auto elettriche Ricariche auto elettriche
Edit Torino
890 m
evway TO Statuto
1,2 Km
evway TO Arbarello
1,4 Km
evway TO Porta Palatina
1,5 Km
Bluetorino Porta Palatina
1,5 Km
Scuole Scuole
Scuola Elementare Statale "Edmondo De Amicis"
660 m
Istituto Professionale Statale "Albe Steiner"
670 m
Scuole
710 m
La Palestra del Cibo - Scuola di Cucina
750 m
Accademia dello spettacolo
1,0 Km
Farmacia Farmacia
Farmacia Cigna SAS
380 m
Farmacia Don Bosco
460 m
Farmacia
600 m
Farmacia dell'Ausiliatrice
680 m
Farmacia Stradella SRL
680 m
Ospedali Ospedali
Ospedale Amedeo di Savoia
1,2 Km
Amedeo di Savoia
1,3 Km
Ospedale Oftalmico
1,4 Km
Ospedale Maria Vittoria
1,6 Km
Ospedale Maria Adelaide
1,8 Km
Supermercati Supermercati
DICO
160 m
Lidl
460 m
il Gigante
550 m
IperCoop
590 m
Il Gigante
710 m
Negozi Negozi
CRAI
380 m
Negozi
400 m
In's
560 m
Biobottega
600 m
Piazza Italia
650 m
Bar Bar
Bar dell'Angolo
390 m
Bar Iris
390 m
Caffetteria Lombardo
400 m
Bar Cigna
420 m
Radio Blackout
450 m
Ristoranti Ristoranti
Pizzeria La Spigola
380 m
Pizzeria Vicoli Vesuviani
390 m
Il Pirata
520 m
Salbora
560 m
Domino's
570 m
Mostra tutto

Caratteristiche

Rif.:
61168539
Piano:
3 di 5 con ascensore (Piano medio)
Balconi:
5
Camere da letto:
3
Arredamento:
Assente
Condizionamento:
Assente
Mostra tutto
Prezzo Prezzo
€ 285.000
Rata mutuo Rata mutuo
€ 1.351 / mese
Spese annue Spese annue
€ 2.600
Proponi il tuo prezzoProponi il tuo prezzo

Classe Energetica

Questo immobile è esente da classe energetica
Anno di costruzione:
1960
Riscaldamento:
Centralizzato
Tipo impianto:
A radiatori
Tipo alimentazione:
Metano

Ti interessa visionare l'immobile?

Fissa un appuntamento  Fissa un appuntamento

Richiedi informazioni

Clicca su Leggi per aprire l'informativa
* Questi campi sono obbligatori

Calcola il tuo mutuo

Semplice e senza impegno
Anticipo

( % )
Mutuo

( % )

pochi semplici passi

inserisci i tuoi dati
Questionario completato
Grazie per aver richiesto un appuntamento senza impegno con un nostro Consulente del Credito e Assicurativo.

Hai inserito correttamente tutti i dati necessari e a breve riceverai una e-mail con un link da convalidare per inviare i tuoi dati.
Affiliato
Studio Principe Sas
Corso Principe Eugenio, 3 10122 Torino (TO)

Il nostro staff


  • Marco Bernabei
    Affiliato

  • Annalisa Spagna
    Coordinatrice
Corso Principe Eugenio, 3 10122 Torino (TO)
Zona: Aurora-Rondò-Quadrilatero Romano
Mostra su mappa
Orari: lunedì - venerdi 9.00-12.30 - 14.30-19.30 sabato 9.00-12.30 - 14.30-18.00
Affiliato
Studio Principe Sas
Corso Principe Eugenio, 3 10122 Torino (TO)

2026 Tecnocasa Franchising S.p.A. - P. IVA 08365160152 - Via Monte Bianco 60/A 20089 Rozzano (MI). Ogni agenzia ha un proprio titolare ed è autonoma. Privacy policy | Policy utilizzo | Cookie policy