Trilocale in vendita

Torino, Via S. Giuseppe Benedetto Cottolengo - Rondo Della Forca
€ 74.000
3 locali 3 locali
74 Mq 74 Mq
1 bagno 1 bagno

Trilocale in vendita

Torino, Via S. Giuseppe Benedetto Cottolengo - Rondo Della Forca

Descrizione annuncio

VIA COTTOLENGO

Nella storica località di Rondo della Forca, è disponibile un appartamento di 74 mq, situato al secondo piano di un edificio d'epoca.

Questa proprietà offre un'opportunità unica per chi cerca un'abitazione comoda a tutti i servizi, grazie alla posizione strategica; a pochi passi da Borgo Dora e Porta Palazzo, due delle aree più vivaci e caratteristiche di Torino.

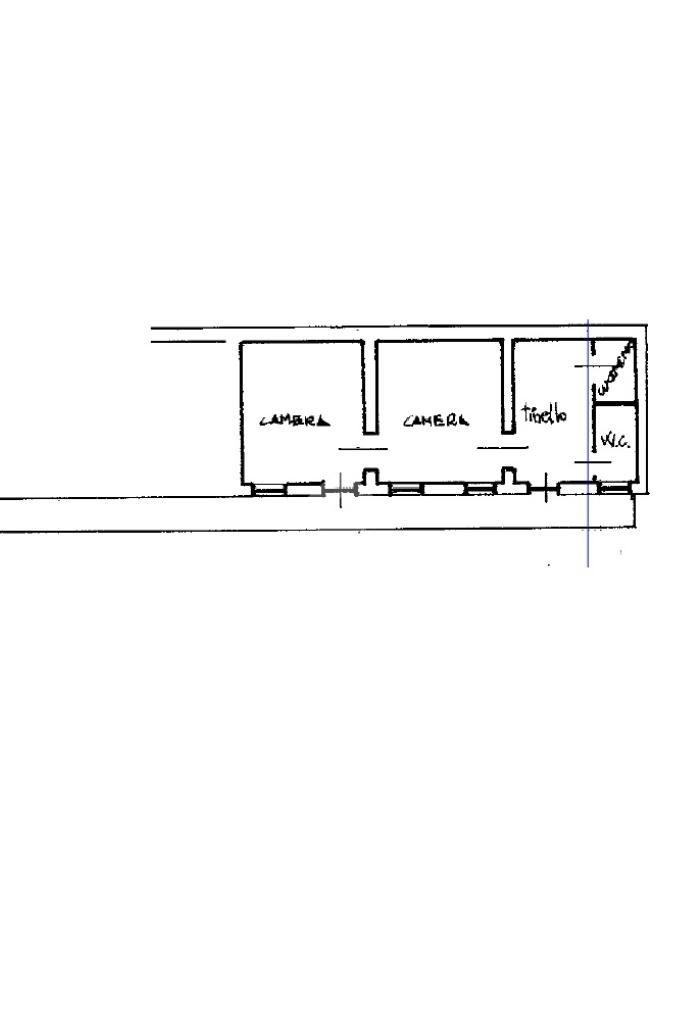
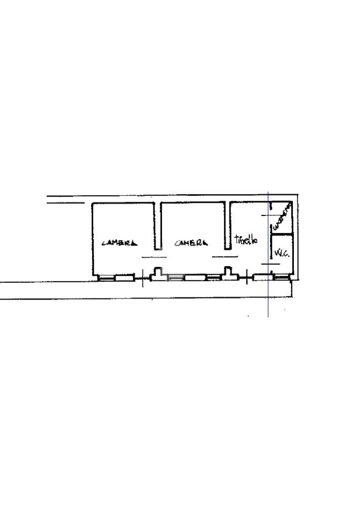
L'appartamento è composto da tre locali, tra cui, due camere da letto, un bagno e una zona giorno composta da tinello e cucinino.

Il balcone presente, regala spazio esterno privato, ideale per momenti di relax.

Il riscaldamento autonomo garantisce comfort e controllo dei consumi.

Questa soluzione è perfetta per chi desidera vivere o investire in questa zona.

Attualmente affittato, libero al rogito.

A concludere la proprietà, cantina di pertinenza.

Per fissare un appuntamento contattateci al numero 011 19483515 o tramite l'indirizzo mail .
Oppure veniteci a trovare in Corso Principe Eugenio 3.

Mostra tutto

Nelle vicinanze

Trasporto pubblico Trasporto pubblico
XVIII Dicembre
XVIII Dicembre
1,0 Km
Principi D'Acaja
Principi D'Acaja
1,1 Km
Torino Dora GTT
Torino Dora GTT
1,3 Km
stazione di Torino Porta Susa
stazione di Torino Porta Susa
1,3 Km
Ospedale Cottolengo
Ospedale Cottolengo
150 m
Ricariche auto elettriche Ricariche auto elettriche
evway TO Statuto
640 m
evway TO Arbarello
680 m
evway TO Porta Palatina
770 m
Bluetorino Porta Palatina
790 m
Bluetorino Teatro Alfieri
1,1 Km
Scuole Scuole
La Palestra del Cibo - Scuola di Cucina
350 m
Scuola Elementare Statale "Edmondo De Amicis"
420 m
Istituto Professionale Statale "Albe Steiner"
510 m
Collegio Carlo Alberto
660 m
Liceo Scientifico A. Volta
770 m
Farmacia Farmacia
Farmacia
340 m
Farmacia Don Bosco
350 m
Farmacia Porta Palazzo
500 m
Farmacia dell'Ausiliatrice
530 m
Comunale 43 - Afc
600 m
Ospedali Ospedali
Ospedale Oftalmico
850 m
Ospedale Maria Adelaide
1,3 Km
Ospedale Amedeo di Savoia
1,7 Km
Ospedale Maria Vittoria
1,7 Km
Clinica Fornaca di Sessant
1,7 Km
Supermercati Supermercati
Etnic Market
350 m
Pam
490 m
Pam local
500 m
DICO
690 m
Asia market
700 m
Negozi Negozi
In's
200 m
Tan Thanh
300 m
Negozi
350 m
Ceni
450 m
Delper
480 m
Bar Bar
Bar Rondò
240 m
smile tree
350 m
Smile Tree
360 m
Bar Cigna
390 m
Arancia a Mezzanotte
410 m
Ristoranti Ristoranti
Ristorante Didu
140 m
Domino's
200 m
Il Pirata
250 m
Griglieria Macelleria Allosso
330 m
La rusnenta
360 m
Mostra tutto

Caratteristiche

Rif.:
61144094
Piano:
2 di 4 (Piano medio)
Balconi:
2
Camere da letto:
2
Arredamento:
Completo
Condizionamento:
Assente
Mostra tutto
Prezzo Prezzo
€ 74.000
Rata mutuo Rata mutuo
€ 351 / mese
Spese annue Spese annue
€ 800
Proponi il tuo prezzoProponi il tuo prezzo

Classe Energetica

Questo immobile è esente da classe energetica
Anno di costruzione:
1900
Riscaldamento:
Autonomo
Tipo impianto:
Ad aria
Tipo alimentazione:
Aria

Ti interessa visionare l'immobile?

Fissa un appuntamento  Fissa un appuntamento

Richiedi informazioni

Clicca su Leggi per aprire l'informativa
* Questi campi sono obbligatori

Calcola il tuo mutuo

Semplice e senza impegno
Anticipo

( % )
Mutuo

( % )

pochi semplici passi

inserisci i tuoi dati
Questionario completato
Grazie per aver richiesto un appuntamento senza impegno con un nostro Consulente del Credito e Assicurativo.

Hai inserito correttamente tutti i dati necessari e a breve riceverai una e-mail con un link da convalidare per inviare i tuoi dati.
Affiliato
Studio Principe Sas
Corso Principe Eugenio, 3 10122 Torino (TO)

Il nostro staff


  • Marco Bernabei
    Affiliato

  • Annalisa Spagna
    Coordinatrice
Corso Principe Eugenio, 3 10122 Torino (TO)
Zona: Aurora-Rondò-Quadrilatero Romano
Mostra su mappa
Orari: lunedì - venerdi 9.00-12.30 - 14.30-19.30 sabato 9.00-12.30 - 14.30-18.00
Affiliato
Studio Principe Sas
Corso Principe Eugenio, 3 10122 Torino (TO)

2026 Tecnocasa Franchising S.p.A. - P. IVA 08365160152 - Via Monte Bianco 60/A 20089 Rozzano (MI). Ogni agenzia ha un proprio titolare ed è autonoma. Privacy policy | Policy utilizzo | Cookie policy