Trilocale in vendita

Torino, Corso Ciriè - Rondo Della Forca
€ 175.000
3 locali 3 locali
82 Mq 82 Mq
2 bagni 2 bagni

Trilocale in vendita

Torino, Corso Ciriè - Rondo Della Forca

Descrizione annuncio

CORSO CIRIE'

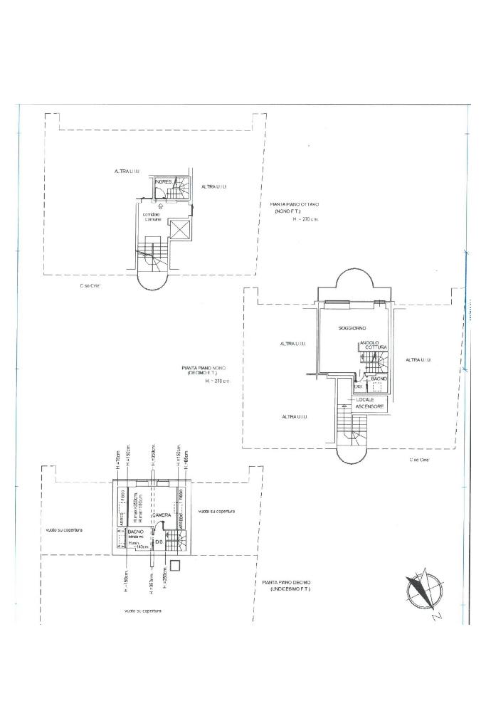
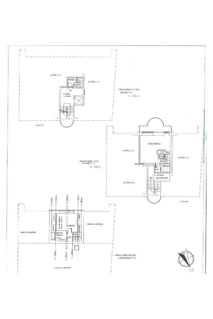
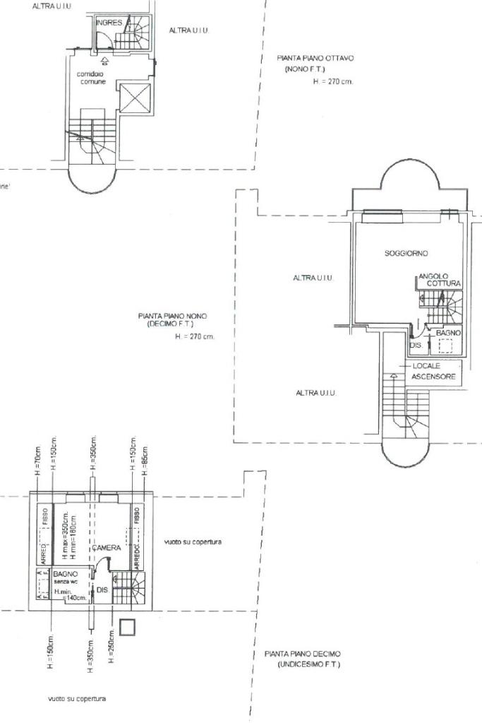
Nel cuore di Torino, nella suggestiva località di Rondò della Forca, si propone in vendita un appartamento di 82 mq, distribuito su tre livelli. L'immobile, costruito nel 1999, offre una vista panoramica di gran parte della città.

Al suo interno, l'appartamento è composto da un ingresso al primo livello, con scala in muratura. Al secondo livello due locali: il soggiorno con ampia finestra, dotato di camino funzionante che crea un'atmosfera accogliente, ideale per momenti di relax. La cucina abitabile, dotata di mobilio moderno, gode di porta finestra che da accesso al terrazzino. Un primo servizio, con box doccia e velux che lo rende molto luminoso.

La presenza di un terrazzo amplia gli spazi vivibili, offrendo un angolo all'aperto per godere della vista.

Al terzo livello si trova la camera da letto mansardata con mobili su misura e un servizio finestrato dotato di vasca da bagno.

L'appartamento è completamente arredato e dispone di riscaldamento autonomo e aria condizionata, assicurando un clima ideale in ogni stagione.

L'edificio è servito da ascensore.

A completare la proprietà, cantina di pertinenza.

Libero subito.

Per fissare un appuntamento contattateci al numero 011 19483515 o tramite l'indirizzo mail .
Oppure veniteci a trovare in Corso Principe Eugenio 3.

Mostra tutto

Nelle vicinanze

Trasporto pubblico Trasporto pubblico
Principi D'Acaja
Principi D'Acaja
1,2 Km
XVIII Dicembre
XVIII Dicembre
1,3 Km
Torino Dora GTT
Torino Dora GTT
800 m
stazione di Torino Porta Susa
stazione di Torino Porta Susa
1,5 Km
Rondò Forca Ovest
Rondò Forca Ovest
470 m
Ricariche auto elettriche Ricariche auto elettriche
evway TO Statuto
890 m
evway TO Arbarello
1,1 Km
Edit Torino
1,1 Km
evway TO Porta Palatina
1,3 Km
Bluetorino Porta Palatina
1,3 Km
Scuole Scuole
Scuola Elementare Statale "Edmondo De Amicis"
380 m
La Palestra del Cibo - Scuola di Cucina
470 m
Scuole
570 m
Istituto Professionale Statale "Albe Steiner"
630 m
Scuola Primaria Parini
1,1 Km
Farmacia Farmacia
Farmacia Don Bosco
330 m
Farmacia dell'Ausiliatrice
410 m
Farmacia Cigna SAS
500 m
Monge
660 m
Farmacia
670 m
Ospedali Ospedali
Ospedale Oftalmico
1,1 Km
Ospedale Amedeo di Savoia
1,3 Km
Amedeo di Savoia
1,4 Km
Ospedale Maria Vittoria
1,5 Km
Ospedale Maria Adelaide
1,7 Km
Supermercati Supermercati
DICO
310 m
IperCoop
660 m
Lidl
750 m
Pam local
760 m
IN's
770 m
Negozi Negozi
Negozi
230 m
In's
330 m
Crai
450 m
CRAI
570 m
Biobottega
630 m
Bar Bar
Sweet&Sour School
240 m
Bar Cigna
300 m
Peterbacco Enoteca
460 m
Bar dell'Angolo
480 m
Bar Rondò
510 m
Ristoranti Ristoranti
Il Pirata
320 m
Domino's
340 m
La taverna del Bergè
380 m
Pizzarò
400 m
Ristorante Didu
450 m
Mostra tutto

Caratteristiche

Rif.:
61134755
Piano:
8 di 8 con ascensore (Piano su più livelli)
Terrazzi:
1
Camere da letto:
1
Arredamento:
Completo
Condizionamento:
Autonomo
Mostra tutto
Prezzo Prezzo
€ 175.000
Rata mutuo Rata mutuo
€ 807 / mese
Spese annue Spese annue
€ 1.400
Proponi il tuo prezzoProponi il tuo prezzo

Classe Energetica

C
C
C
C
C
C
C
C
C
EP globale non rinnovabile:
83.93 kW h/m² anno
Anno di costruzione:
1999
Riscaldamento:
Autonomo
Tipo impianto:
A radiatori
Tipo alimentazione:
Metano

Ti interessa visionare l'immobile?

Fissa un appuntamento  Fissa un appuntamento

Richiedi informazioni

* Questi campi sono obbligatori

Calcola il tuo mutuo

Semplice e senza impegno
Anticipo

( % )
Mutuo

( % )

pochi semplici passi

inserisci i tuoi dati
Questionario completato
Grazie per aver richiesto un appuntamento senza impegno con un nostro Consulente del Credito e Assicurativo.

Hai inserito correttamente tutti i dati necessari e a breve riceverai una e-mail con un link da convalidare per inviare i tuoi dati.
Affiliato
Studio Principe Sas
Corso Principe Eugenio, 3 10122 Torino (TO)

Il nostro staff


  • Marco Bernabei
    Affiliato

  • Annalisa Spagna
    Coordinatrice
Corso Principe Eugenio, 3 10122 Torino (TO)
Zona: Aurora-Rondò-Quadrilatero Romano
Mostra su mappa
Orari: lunedì - venerdi 9.00-12.30 - 14.30-19.30 sabato 9.00-12.30 - 14.30-18.00
Affiliato
Studio Principe Sas
Corso Principe Eugenio, 3 10122 Torino (TO)

2025 Tecnocasa Franchising S.p.A. - P. IVA 08365160152 - Via Monte Bianco 60/A 20089 Rozzano (MI). Ogni agenzia ha un proprio titolare ed è autonoma. Privacy policy | Policy utilizzo | Cookie policy